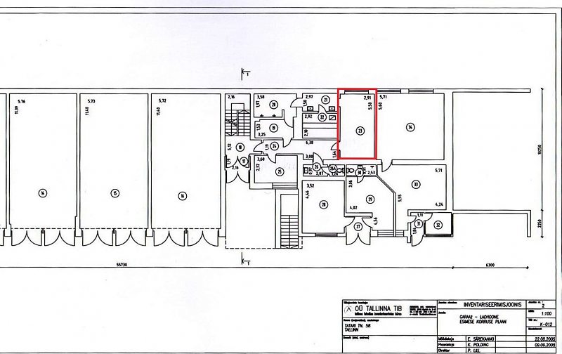
Üürile anda 16 ruutmeetri suurune, hoone esimesel korrusel asuv büroopind.
Ruumi on hiljuti remonditud. Välja on vahetatud kõik elektrikaablid, pistikupesad ja valgustid. Ruumi on paigaldatud uued elektriradiaatorid.
Põrandakatteks on laminaatparkett. Seinad on värskelt värvitud. Ruumi sissepääsuks on uus tulekindel uks. Välja on vahetatud kõik aknad.
Ruumil on eraldi elektriarvesti. Samuti on paigaldatud juhtmestik kaasaegsete kommunikatsioonivahendite tarbeks - telefon ja internet |

